Thứ lún không đáng sợ… đáng sợ là hầm tự hoại lún mà không ai kiểm soát.
Vì khi đó, thứ rò rỉ không chỉ là nước thải – mà là cả chất lượng công trình.
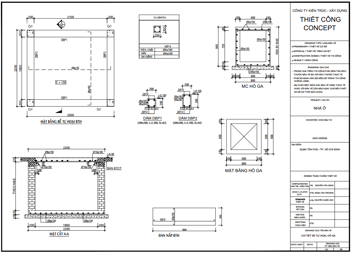
Bể tự hoại – hạng mục nhỏ nhưng ảnh hưởng lớn
Trong quá trình xây dựng nhà ở, nhiều chủ đầu tư thường tập trung vào phần kết cấu, kiến trúc mà bỏ qua một hạng mục quan trọng: bể tự hoại.

Thực tế, đây là khu vực xử lý chất thải sinh hoạt, nếu thi công không đúng kỹ thuật sẽ dẫn đến:
- Nứt bể
- Rò rỉ nước thải ra nền đất
- Gây ô nhiễm và ảnh hưởng đến kết cấu công trình
Đặc biệt tại các khu vực nền đất yếu hoặc san lấp, rủi ro này càng cao.
Bể tự hoại treo là gì?
Bể tự hoại treo là giải pháp thi công bể bằng kết cấu bê tông cốt thép kết hợp xây gạch đặc 100%, đồng thời neo trực tiếp vào hệ móng và đà kiềng của ngôi nhà.

Nhờ đó, bể không phụ thuộc hoàn toàn vào nền đất bên dưới mà “làm việc cùng kết cấu công trình”.
Nguyên lý hoạt động
Khác với bể truyền thống đặt trực tiếp trên nền đất, khi nền đất bị lún:
- Bể truyền thống lún theo → dễ nứt
- Bể tự hoại treo được giữ bởi móng & đà kiềng → ổn định
Đây chính là điểm khác biệt cốt lõi giúp tăng độ bền và hạn chế rủi ro.
So sánh bể tự hoại truyền thống và bể tự hoại treo
| Tiêu chí | Bể truyền thống | Bể tự hoại treo |
|---|---|---|
| Cách đặt | Trên nền đất | Neo vào móng, đà kiềng |
| Ảnh hưởng khi lún | Dễ nứt | Ổn định |
| Nguy cơ rò rỉ | Cao | Thấp |
| Độ bền | Trung bình | Cao |
| Phù hợp đất yếu | Không | Rất phù hợp |
Ưu điểm của bể tự hoại treo
- Hạn chế nứt do lún lệch nền
- Giảm thiểu rò rỉ nước thải ra môi trường
- Tăng tuổi thọ công trình
- Phù hợp với:
- Nhà phố & Biệt thự
- Khu vực đất yếu, san lấp
- Công trình yêu cầu độ bền cao

Lưu ý khi thi công
Để bể tự hoại treo đạt hiệu quả, cần đảm bảo:
- Liên kết thép neo đúng kỹ thuật
- Thi công bê tông đúng mác thiết kế
- Xây gạch đặc 100%
- Chống thấm kỹ toàn bộ bể
- Xử lý tốt các vị trí cổ ống
Đây là những yếu tố quyết định đến độ bền lâu dài.

Giải pháp tại Thiết Công Concept
Tại Thiết Công Concept, bể tự hoại không chỉ là hạng mục phụ mà được xem là một phần của hệ kết cấu bền vững.

Chúng tôi ưu tiên giải pháp bể tự hoại treo neo đà kiềng, giúp:
- Hạn chế tối đa nứt và rò rỉ
- Đảm bảo vệ sinh môi trường
- Tăng độ ổn định cho toàn bộ công trình
Bể tự hoại là hạng mục “ít thấy nhưng ảnh hưởng lâu dài”. Việc lựa chọn đúng giải pháp ngay từ đầu sẽ giúp chủ đầu tư tránh được nhiều rủi ro về sau.
Bể tự hoại treo chính là lựa chọn tối ưu cho các công trình hiện đại, đặc biệt trong điều kiện nền đất phức tạp.
Nếu bạn đang chuẩn bị xây nhà và cần tư vấn về phần móng, đừng ngần ngại liên hệ Thiết Công Concept để được hỗ trợ chi tiết và thi công đúng chuẩn ngay từ đầu.
THIẾT CÔNG CONCEPT
Địa chỉ : Số 23 Đường số 7, KDC Ctyland Park Hills, P.10, Q. Gò Vấp, TP.HCM
Hotline : 0903 369 626
Email : thietcongconcept@gmail.com
Website : https://thietcongconcept.vn/