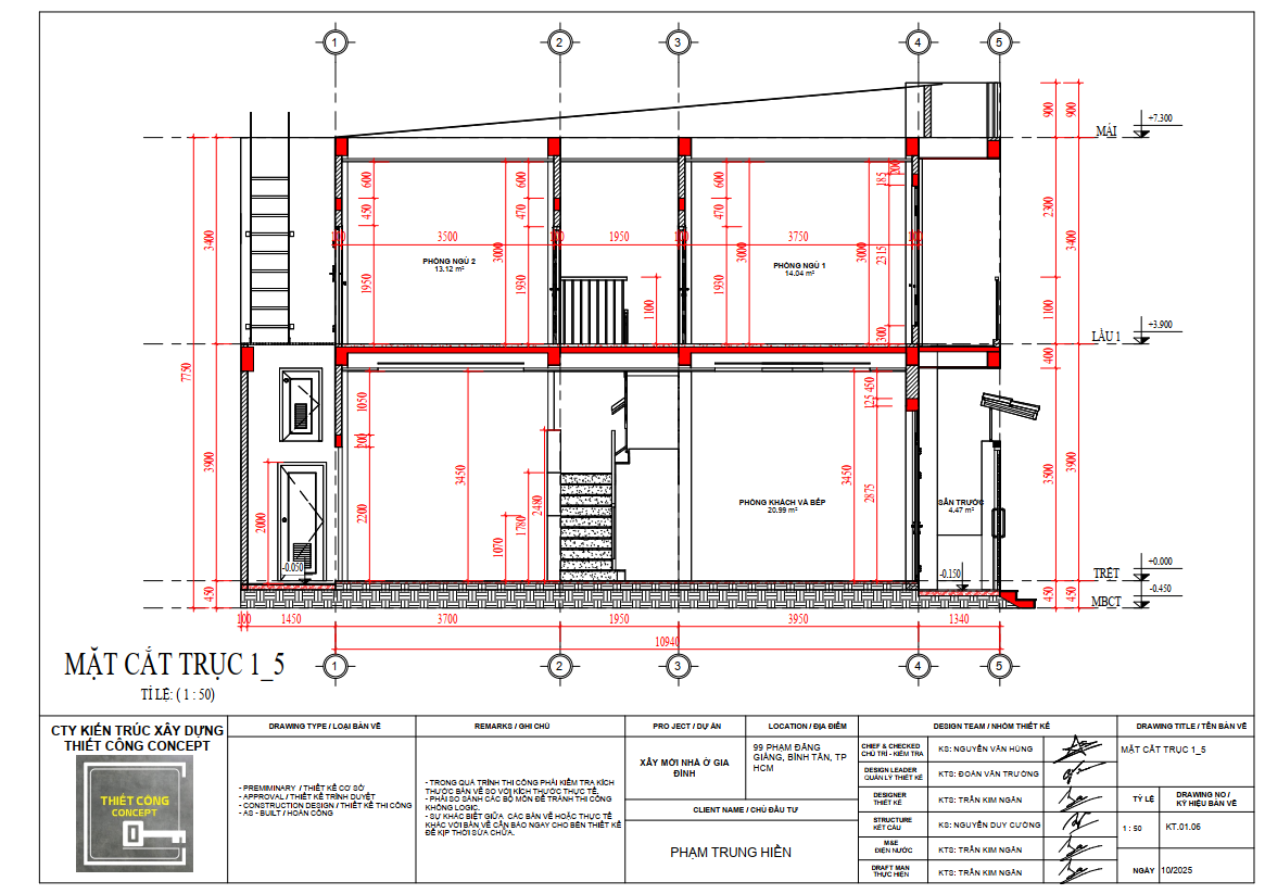
Mẫu nhà đẹp Nhà Phố MẪU THIẾT KẾ NHÀ Ở GIA ĐÌNH HIENS HOUSE 4M X 12M 2 TẦNG 2 PHÒNG NGỦ ( CẢI TẠO ) - NĂM 2025 MẪU THIẾT KẾ NHÀ Ở GIA ĐÌNH HIEN'S HOUSE 4M X 12M 2 TẦNG 2 PHÒNG NGỦ ( CẢI TẠO ) - NĂM 2025